충북 청주의 온실에 당사의 패널이 적용되었습니다.
새로 지은 건물은 아니었습니다.
기존에 철골 구조 위로 비닐로 덮어 사용하고 있었는데,
비닐 찢어짐으로 누수가 발생하고 식물재배에 문제가 많이 생겨서
당사의 폴리카보네이트 복층판으로 교체공사를 진행했습니다.
기존에 비닐이 덮여 있던 모습입니다.
외관은 그다지 문제가 없어 보이지만
역시 문제는 비닐의 파손이었습니다.
한 겨울에는 아주 작은 틈새로도
온실 전체의 난방 효율이 크게 떨어질 수 있습니다.
그렇기 때문에 발주처에서 요구한 중요한 사항은
뛰어난 채광, 단열성, 강한 내구성이었습니다.
하여 당사에서도 두께가 10mm가 아닌 16mm를 추천하였고
지붕에는 빛 투과가 좋으며 우박에도 문제가 없는 투명 색상의 셀렉토갈을
벽체 쪽에는 타이탄스카이 투명 색상과 스모크그레이 투 톤을 제안하였습니다.
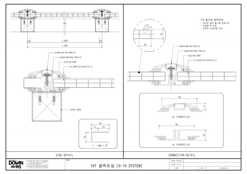
폴리카보네이트 패널을 잡아주는 6-16프로파일 시스템 입니다.
주로 지붕쪽에 사용되는 알루미늄 부자재입니다만,
본 현장과 같이 벽체 쪽 연결 부재로 사용되기도 합니다.
<셀렉토갈 상세도 > 기술 자료 | (주)두인폴리캠 (polygal.co.kr)>
단면을 보시면 위아래로 2군데씩 EPDM가스켓이 들어가는 것을 알 수 있습니다.
이것이 패널을 꽉 잡아주는 동시에 누수 방지의 역할을 합니다.
연결이 끊어지는 부분 외에는 코킹(실리콘)을 할 필요가 없습니다.
알루미늄 상바와 하바를 고정하는 스텐피스는
깔끔하게 캡이 가려주게 됩니다.
21년 1월 5일에 방문하여 촬영한 것들입니다.
촬영 당시의 외부 온도는 영하 1도였습니다.
난방기가 작동되지 않고 있었음에도 불구하고
내부는 영상 18도의 온도를 유지하고 있었습니다.

기존에 비닐로 되어 있을 때는 난방기를 계속 틀지 않으면
이런 온도가 유지될 수 없었다고 합니다.
당사의 폴리카보네이트 복층판을 설치 한 이후로는
10도 이하로 떨어진 적이 없다고 하니 단열성의 차이가 어느 정도인지 짐작이 됩니다.
사용자 측에서는 단열에 대해 매우 만족하고 있었습니다.
발주처 측에서 온실의 좌,우,상부 천장에 자동개폐시스템을 적용하여 촬영해 보았습니다.
아래위로 두 줄로 연결된 와이어 타입이었습니다.
![]()
![]()
![]()
![]()
![]()
기존의 구조물을 재사용 할 수 있는 방법을 제안함으로써
공사비용 또한 절감할 수 있는 현장이었습니다.
온실 비닐의 파손 때문에 고민 중인 분들께
좋은 참고가 될 수 있는 사례가 아니었나 생각합니다.
